Produktfördelar
* Enkelt, högkvalitativt och välkonstruerat system . Lätt att installera
* Snabb, automatisk aktivering
* Rostfritt stålrör, beslag och munstycken som passar köksmiljöer .
* Linjär värme- och flamdetektering, vilket möjliggör flera detekteringspunkter . Flexibla rörledningar
* Återstående i drift under kraftavbrott
* Snabb, enkel rengöring När apparaterna har svalnat kan agenten enkelt torkas bort från utrustning
Produktspecifikation



|
Priw 10-1- k (för 3 ~ 5m kök huva) |
|||
|
Agentkapacitet (L) |
10L X 1 |
Aktiveringstemperatur |
180 grader |
|
Spraya munstycke (PC) |
7~10 |
Urladdningstid |
Större än eller lika med 30 |
|
Temp . detektor (PC) |
3~5 |
Drive gasladdning (G) |
0-55 |
|
Bränsleavstängningsventil |
Beroende |
Drive gasladdning (G) |
145±5 |
|
Skyddsområde |
3 ~ 5 meter |
Drive gastryck (MPA) |
12 |
|
Priw 20-2- k (för 7 ~ 10 m kök huva) |
|||
|
Agentkapacitet (L) |
10L X 2 |
Aktiveringstemperatur |
180 grader |
|
Spraya munstycke (PC) |
14~18 |
Urladdningstid |
Större än eller lika med 30 |
|
Temp . detektor (PC) |
7~10 |
Drive gasladdning (G) |
0-55 |
|
Bränsleavstängningsventil |
Beroende |
Drive gasladdning (G) |
145±5 |
|
Skyddsområde |
7 ~ 10 meter |
Drive gastryck (MPA) |
12 |
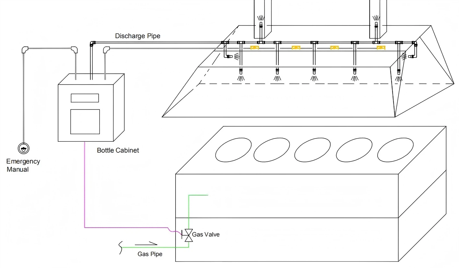
Arbetsdiagram

Steg 1 --- När det finns en brand, brister detekteringsröret till ett hål när temperaturen når till 140 ° C .
Steg 2 --- Det resulterande tryckfallet gör att huvudventilen aktiveras .
Steg 3 --- Huvudventilen öppen, och medlet urladdning genom röret till spraymunstycken .
Steg 4 --- Agent täcker brandområdet och släck elden snabbt och noggrant .
Detta system är helt automatiskt och oberoende av el .
Produktansökan

Förpackning och leverans
Baserat på kökshuvstorlek
1. Cafeterias 2. kryssningsfartyg
3. kulinariska skolor 4. Delis
5. Snabbmatkedjor 6. Matdomstolar
7. Hotell 8. Militära anläggningar
9. Restauranger 10. Skolcafeterior
11. Sportkomplex/stadioner 12. Hospit
13. .....
Företagsprofil
Pri-Safety Factory byggdes 2005, är ett nationellt högteknologiskt företag med fokus på forskning, design och tillverkning av automatiska brandsuppressionssystem och brandbekämpningsutrustning .
Och de viktigaste produkterna vi producerar inkluderar: Fordons- och mekanisk utrustning Automatisk brandundertryckningssystem, köksbrandsystem, heptafluoropropangasbrandsuppressionssystem, FM200/FK -5112 Verktygsöversvämningssystem, vattendimmens brandsystem, tryckutrustning (CAFS), brandspårningssystem osv.
Vi producerar inte bara brandsystem utan också designar dem och tillhandahåller olika brandlösningar, vi har ett professionellt tekniskt team som hjälper oss med det, och även perfekta efterförsäljningstjänster .
Alla frågor, som installation, känn dig fri att kontakta oss, vi är alltid online . och vi har passerat ISO9001: 2015 -certifiering av kvalitetshanteringssystem, och dess har CE och EN
Vår adress
A -413, Meidu Plaza, Gongshu District, Hangzhou, China .
Telefonnummer
+86 18270460987
E-post
firesystem@pri-safety.com




